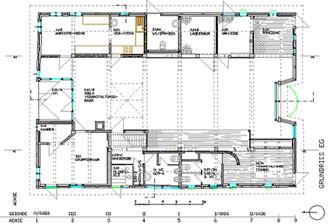
5. Stellau, Altes Pastorat, Grundriss Erdgeschoss, Nutzungseinpassung unter Wahrung der Raum- und Erschließungsstruktur sowie er erhaltungswürdigen Ausstattung und Oberflächen (2005)
^ Übersicht Abbildungen     < vorige Abbildung     nächste Abbildung >